Tágas otthon, hatalmas terek

1295 Nyomtatás Ajánlás Facebook

Zala vármegyében, a szlovén határ közelében, valóban szép természeti adottságokkal rendelkező, a Lenti járáshoz tartozó Mikekarácsonyfa településen vált eladóvá ez az igazán különleges családi ház. Az ingatlan közel 180 nm nagyságú, melyhez az alagsorban további közel 20 nm tartozik, így a hasznos alapterület, több, mint 200 nm. Az ingatlan helyiségeit a sok napfény, és a valóban nagy méretű helyiségek jellemzik. A terület 4282 nm nagyságú, így aki gazdálkodni szeretne, könnyen megtalálhatja elképzeléseit.

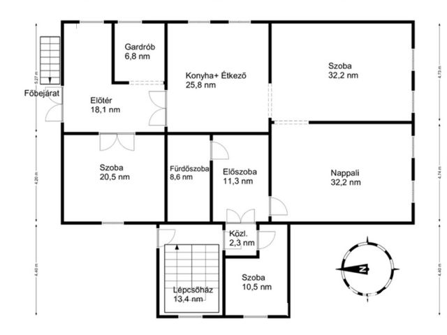
A tulajdonosok gondos munkája során megújult az ingatlan teljes villamoshálózata, valamint megújult a főbejárati ajtó. A villamos hálózat 3X32 A áramerősséggel rendelkezik, valamint egy H tarifás hálózat is ki lett alakítva. A további felújítási munkálatok az új tulajdonos feladatai lesznek. Az ingatlanban vezetékes vízszolgáltatás nincs, a mindennapi élethez szükséges vizet egy mély, állandó vízű kút látja el, melyről egy házi vízmű segítségével jut a víz az ingatlanba. A vízbekötéshez a terveztetés már elkészült. A helyiségek fűtéséről kandallók gondoskodnak. A lakótér helyiségei és elrendezése az fotók között található alaprajzon megtekinthető.

Nagyobb családok számára, vállalkozások telephelyének, gazdálkodás kialakítására is tökéletes választás. Megtekintéshez minden esetben telefonos egyeztetés szükséges. Külső képekért, valamint további információkért keressen bizalommal!

Stolcz Gábor préimum ingatlanértékesítő (+36 30 551 8808)

Stolcz Gábor
PRÉMIUM

Stolcz Gábor

9 éve a Városi Ingatlaniroda tagja
Ingatlanértékesítő
Letenye
+36 (30) 551 8808
Észrevétel a hirdetéssel kapcsolatban
Egy ingatlanos naplója