Sarkadon 2+fél szobás családi ház nagy telekkel

5967 Nyomtatás Ajánlás Facebook

Amennyiben Sarkadon keres masszív, stabil téglaházat, amely gazdálkodásra is alkalmas, akkor kérem, tekintse meg az alábbi ingatlant.

Sarkad településen, Gyula településtől, valamint a román államhatártól is 10-15 kilométer távolságra helyezkedik el, eladó egy 2207 m2 telken elhelyezkedő, 92 m2 hasznos alapterületű családi ház, amely rendelkezik minden közművel.
Az ingatlan a ’80-as évek elején épült, vasbeton alapon, beton lábazatra B30-as tégla falazattal. Tetőszerkezete stabil nyeregtető szerkezetű, cserepes héjazatú. A födém szerkezete lehetővé teszi akár további helyiségek kialakítását is. Az energiamegtakarítás miatt kőzetgyapot hőszigetelést kapott.

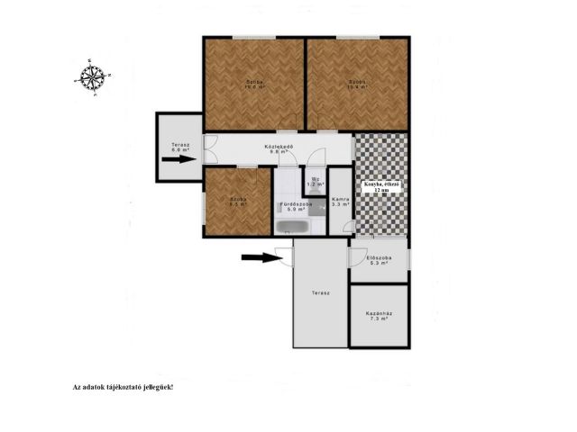
Helyiségei: 2 + félszoba, előszoba, fürdőszoba tusolóval, külön Wc, konyhahelyiség, kamra, kazánház.
A folyosóról nyíló, külön bejárattal rendelkező szobák parketta, a további helyiségek hidegburkolattal ellátottak. A redőnnyel ellátott, duplaszárnyas, fa tokozású ablakok kellő fényt engednek be a szobákba. Fűtésrendszere vegyeskazánnal, valamint egy 2024-ben beépített Beretta márkájú kondenzációs gázkazánnal került kialakításra, radiátoros hőleadókkal. A használati melegvízellátás villanybojlerről üzemel.

A telek további tárolót, disznóólakat, ásott kutat valamint egy további kazánházat tartalmaz, amelyet a korábbi zöldségtermesztésre használt fólia sátrak fűtésére használtak.
Az ingatlan per- és tehermentes, igény szerinti felújítást követően költözhető állapotban van.

Amennyiben további információra lenne szüksége, akkor keressen nyugodtan. Kérésre külső, vagy további képeket telefonos beazonosítást követően küldöm.
Ügyfeleink számára irodánk teljes jogi hátteret, adás-vétellel kapcsolatos térítésmentes jogi tanácsadást biztosít!
Bank semleges, díjmentes hiteltanácsadással is hozzájárulunk, hogy megtalálja az Ön számára legkedvezőbb megoldást!

Gajdács József

Gajdács József

2 éve a Városi Ingatlaniroda tagja
Ingatlanértékesítő
Gyula
+36 (70) 677 4382
Észrevétel a hirdetéssel kapcsolatban
Egy ingatlanos naplója