Patinás szállásépület Battonyán

4269 Nyomtatás Ajánlás Facebook

Eladó Battonya központjában, az a szép karakteres, műemlék jellegű, téglaépület.
A telek 2290 m2 területű, melyen több épület helyezkedik el.
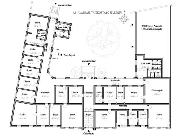
A ~ 650 m2 hasznos területű Főépület 1910 körül épült, a mai arculatot 2003-ban alakították ki. Jelenleg 20 kiadó szobával, 2 vizesblokkal, közösségi térrel és konyhával rendelkezik. Az egész épület alatt pince található.
Az udvarból nyíló kisebb épület 1970 körül épült, ~300 m2 alapterületen 3 külön bejáratú apartman és egy ~ 80 m2 területű közösségi helyiség található benne.
Az ingatlanok jelenleg is szállást adó helyként üzemelnek.

Néhány adat az eladó ingatlanról:
- Telek: 2290 m2

- Fő épület: ~650,00 m2 (alaprajz a fotók között)
-villamoshálózat: 3x 40 A
-riasztó
-füstérzékelő
-pince
-Fűtés: gáz konvektorok
-Meleg víz: elektromos bojler

- Udvari épület: ~300,00m2
-villamoshálózat: 3x 16 A
-Fűtés- gáz konvektorok
-Meleg víz: elektromos bojler

- Villamos hálózat régi, 1980-ban került felújításra

Az ingatlannal kapcsolatos kérdéseivel várom hívását, a hét bármely napján.

Ügyfeleink számára irodánk teljes jogi hátteret, adás-vétellel kapcsolatos térítésmentes jogi tanácsadást biztosít.
Bank semleges hitelügyintézéssel, díjmentes hitelszűréssel és tanácsadással is hozzájárulunk, hogy megtalálja az ön számára legkedvezőbb megoldást.

Sárai-Kovács Ágnes
PRÉMIUM

Sárai-Kovács Ágnes

5 éve a Városi Ingatlaniroda tagja
Ingatlanértékesítő
Hódmezővásárhely
+36 (30) 742 5020
Észrevétel a hirdetéssel kapcsolatban
Egy ingatlanos naplója