Patinás polgári ház a Kálvin tér közelében

4574 Nyomtatás Ajánlás Facebook

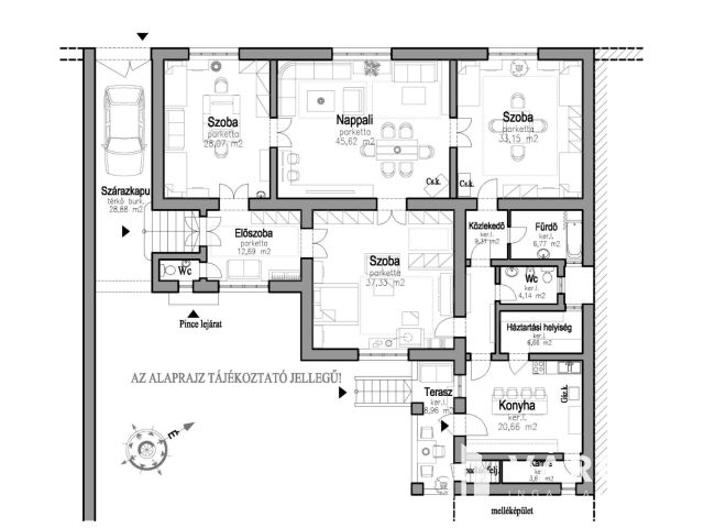
Hódmezővásárhely központi részén, eladó polgári ház, 503 m2 alapterületű telken. Az 1930-as évek körül épült, tégla falazatú ház alatt ~40,00 m2 alapterületű pince található. A jelenleg műemléki védelem alatt álló épület régen parókiaként is működött. A nagy belső terek (lásd.: alaprajz) jelenleg is lehetővé teszik, hogy nem csak családi otthonként funkcionáljon. A remek helyen lévő, ~210,00 m2 hasznos alapterületű, Nappali + 3 szobás ingatlan korszerűsítése időszerű.
A központi buszpályaudvar 8 perc sétával, Tram-Train megálló 5 perces sétával kényelmesen elérhető, így a Szegedre bejárás is könnyen megoldható. Szeged BYD 24 perc autóval!!!
Az épület paraméterei:

- Telek területe: 503 m2
- Lakóépület hasznos alapterülete: ~210,00 m2
- Pince: 26,52 m2
- Száraz kapu: ~29, 00 m2
- Terasz: ~ 9,00m2
- Nappali: ~45,00 m2
- Szobák: ~37,00 m2, ~33,00 m2, ~28,00 m2,
- Konyha: ~21,00 m2
- Előszoba: ~13,00 m2
- Fűtés: központi gáz kazánnal
- Meleg víz: elektromos vízmelegítő + gázos vízmelegítő
- klíma
- két cserépkályha

Az ingatlannal kapcsolatos kérdéseivel várom hívását, a hét bármely napján.

Ügyfeleink számára irodánk teljes jogi hátteret, adás-vétellel kapcsolatos térítésmentes jogi tanácsadást biztosít.
Bank semleges hitelügyintézéssel, díjmentes hitelszűréssel és tanácsadással is hozzájárulunk, hogy megtalálja az ön számára legkedvezőbb megoldást.

Sárai-Kovács Ágnes
PRÉMIUM

Sárai-Kovács Ágnes

5 éve a Városi Ingatlaniroda tagja
Ingatlanértékesítő
Hódmezővásárhely
+36 (30) 742 5020
Észrevétel a hirdetéssel kapcsolatban
Egy ingatlanos naplója