Ipari övezet szomszédságában üzleti lehetőség

16219 Nyomtatás Ajánlás Facebook

A Városi Ingatlaniroda eladásra kínál Mezőmegyer központjában egy vendéglátó egységként üzemeltetett ipari épületet.
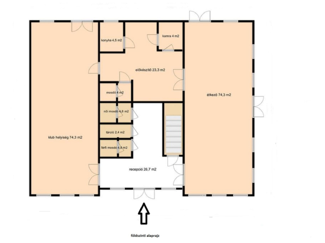
A tulajdoni lapon kivett étterem megnevezésű ingatlan összközműves, kétszintes, a földszinti rész 225 m2 , az emeleti rész 190 m2. A telekméret 400 m2.

Az épület tégla falazatú, nagy teljesítményű gázkazánnal fűtött, szerkezeti állapota (nagyon) jó, ebben nem igényel felújítást. A helyiségek a mai igényeknek és a leendő működési körnek megfelelően korszerűsítendőek.

A földszinti rész korábban étteremként üzemelt, ennek megfelelően kerületek kialakításra a helyiségek: előkészítő, konyha, kamra, tárolók, étterem, klubhelyiség, mellékhelyiségek.
A tetőtér jelenleg a képeken látható állapotban van. Itt kialakíthatóak a működési profilba illő, kiadható vendégszobák, irodák.

Az ingatlan teljesen zárt, korábban teraszként funkcionáló udvarral rendelkezik, ezen a területen hangulatos kerthelyiség, grillterasz létesíthető.

Összességében véve egy jobb napokat látott, de sok lehetőséget kínáló ingatlant kínálunk megvételre, amely új tulajdonosai által újra felvirágoztatható.
Kedvező elhelyezkedést jelent a sok munkaerőt foglalkoztató, nagyobb vállalatok közelsége, ( Linamar Hungary Zrt, Happy Tej, Axila Kft, Frühwald, M44 gyorsforgalmi út 5 km-en belül) ami a hétköznapok forgalmát biztosíthatja menüztetéssel, a hétvégeken családi ünnepeknek, kisebb esküvőknek, ballagásoknak adhat tökéletes helyszínt.

Molnár János
PRÉMIUM

Molnár János

2 éve a Városi Ingatlaniroda tagja
Ingatlanértékesítő
Békéscsaba
+36 (70) 384 6653
Észrevétel a hirdetéssel kapcsolatban
Egy ingatlanos naplója