Badacsony oldalában családi ház kedvező áron eladó

6718 Nyomtatás Ajánlás Facebook

A Badacsony lábánál családi házas környezetben, kilátással a Badacsonyra és a környező hegyekre, rendezett, jól karbantartott családi ház három teljesen felszerelt, jól működő apartmannal sürgősen eladóvá vált.
Az ingatlant ajánlom befektetőknek, vagy olyan családnak, akik látnak lehetőséget az apartmanok további működtetésében, illetve olyan családoknak, ahol a korosztályok együttélését szeretnék különálló lakásban, de mégis együtt megoldani.
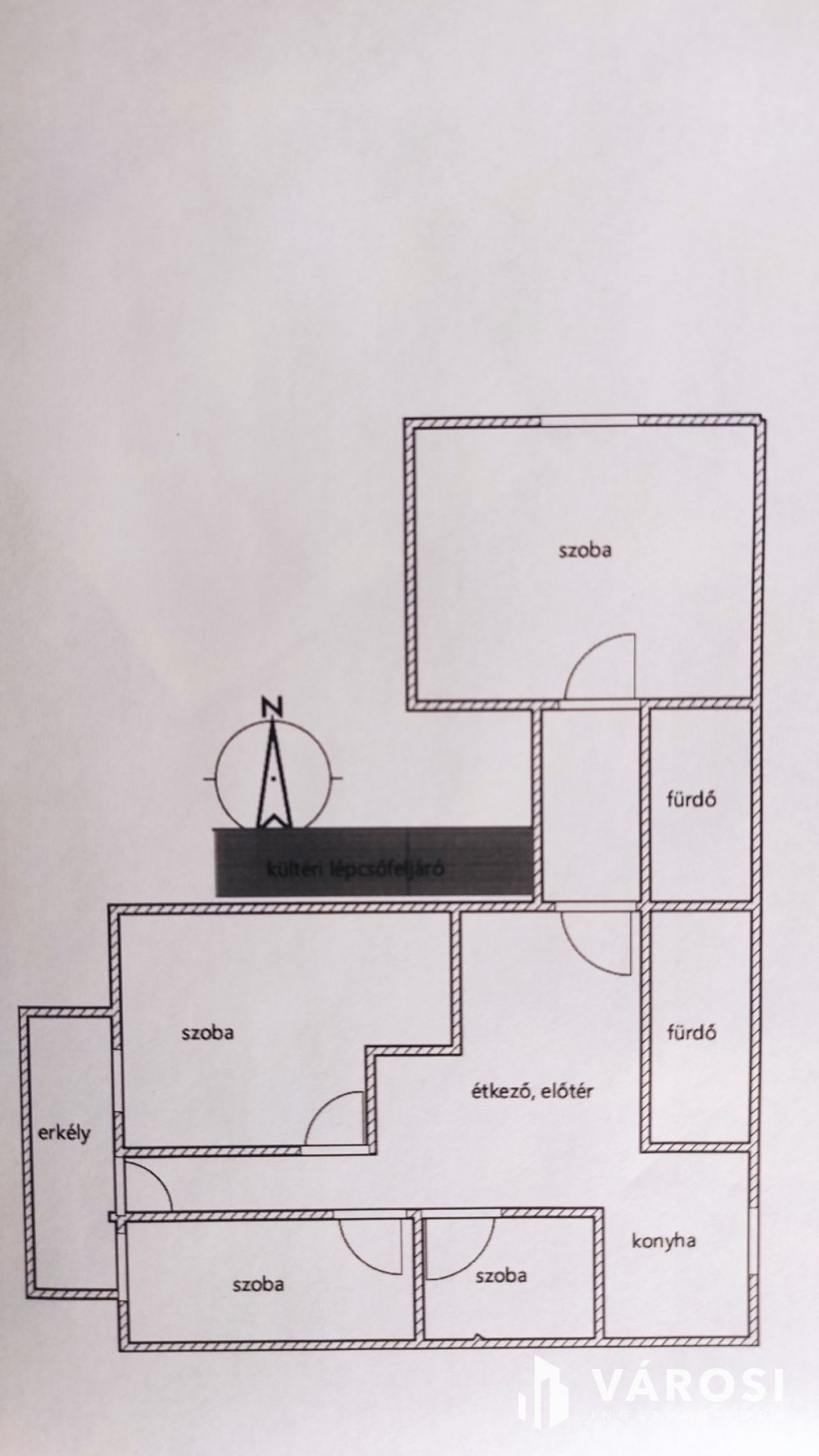
Az ingatlan főépületének földszintjén nappali, előtér, 2 nagy méretű szoba, konyha étkezővel, fürdőszoba és kamra található.
A főépület tetőtere külső stabil, részben fedett lépcsőn megközelíthető, 3 fél szoba, étkező nappali, konyha, fürdőszoba kapott a lakrészben helyet. A helyiségek teljesen felszereltek, járólappal burkoltak, az erkélyről élvezhetjük a kilátást egy vacsora, vagy reggeli kávé mellett.
A főépülettel egy tetősík alá épített különálló kis ház alápincézett, a pince két részre tagolt. A házban egy szoba, konyha és fürdőszoba található. A kis ház tetőterében, mely ugyan csak a külső lépcsőn megközelíthető, egy nagy szoba kapott helyet, melynek kiszolgáló egységei a tetőtéri kis folyosóról nyílnak.
Az épület alsó és felső szintjei radiátoros hőleadóval felszereltek, a meleget gázkazán és vegyes tüzelésű kazán is biztosítja. A teljes épület 10 cm hőszigeteléssel ellátott, műanyag hő és hangszigetelt egyedileg készült nagy méretű nyílás-zárókkal.
Az épület folytatásában tárolók és szerelőaknával rendelkező garázs, az udvaron különállóan eredetileg garázsnak épített helyiség, jelenleg raktárként funkcionál. Az udvaron a szalonnasütő, és fedett kiülő, és a nagy zöld fűfelület, valamint a hinták a család és a vendégek pihenését, kikapcsolódását szolgálják teljes rálátással a Badacsonyra.
Az ingatlan eladása sürgős, ezért áron alul kínáljuk, idős tulajdonosa egyedül nem bírja fenntartani.
Kérem, ha az ingatlan felkeltette érdeklődését, keressen az elérhetőségeimen, az ingatlan előzetes egyeztetés alapján megtekinthető. Nagyon kedvező befektetés és otthon egyben.

Sibak András

Sibak András

Ingatlanértékesítő
Tapolca
+36 (70) 533 0069
Észrevétel a hirdetéssel kapcsolatban
Egy ingatlanos naplója